24116 Kiel

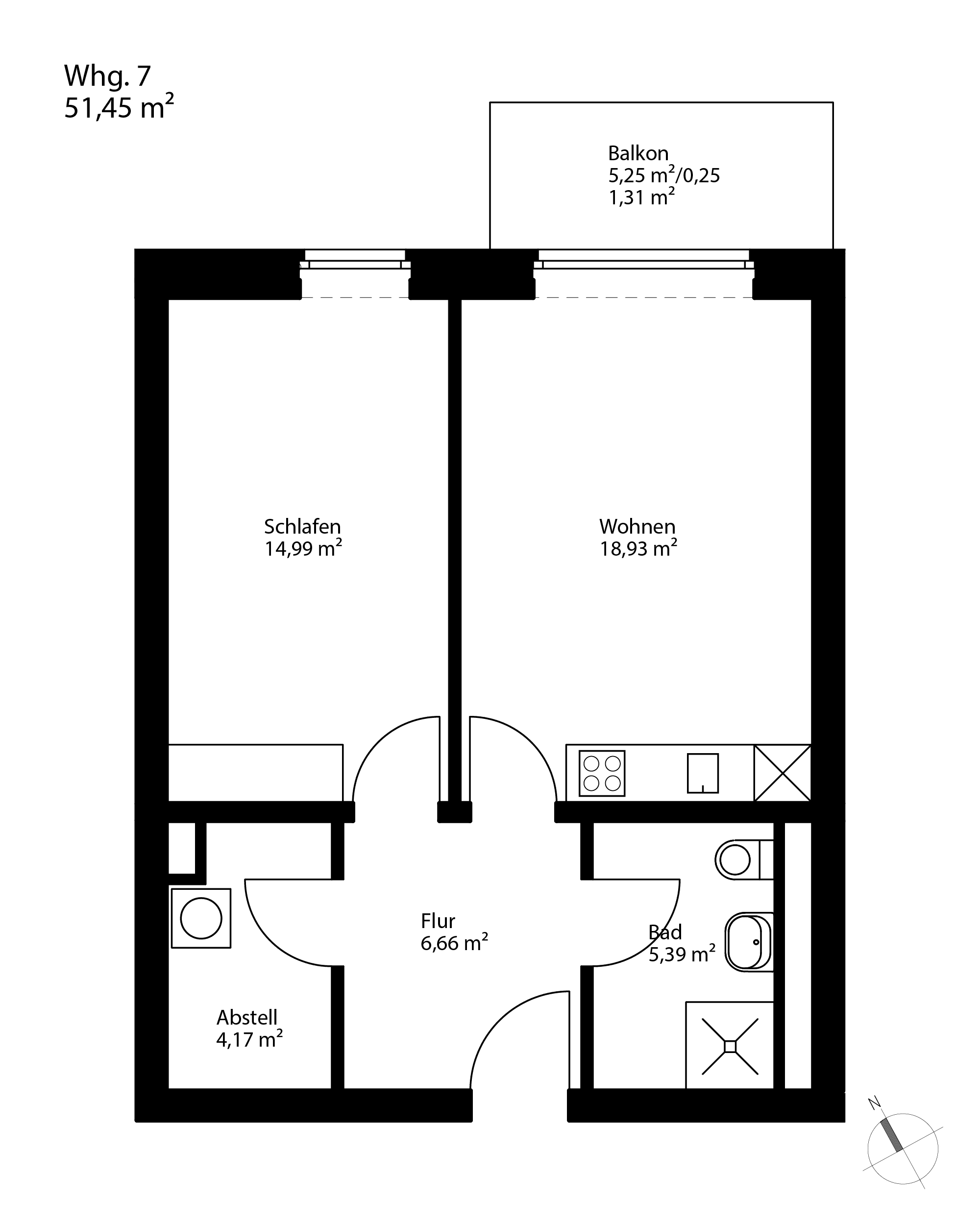
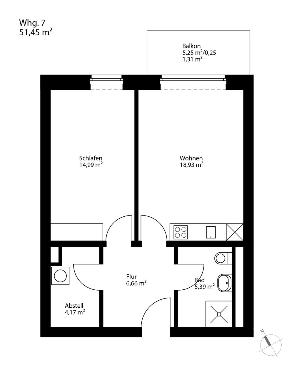
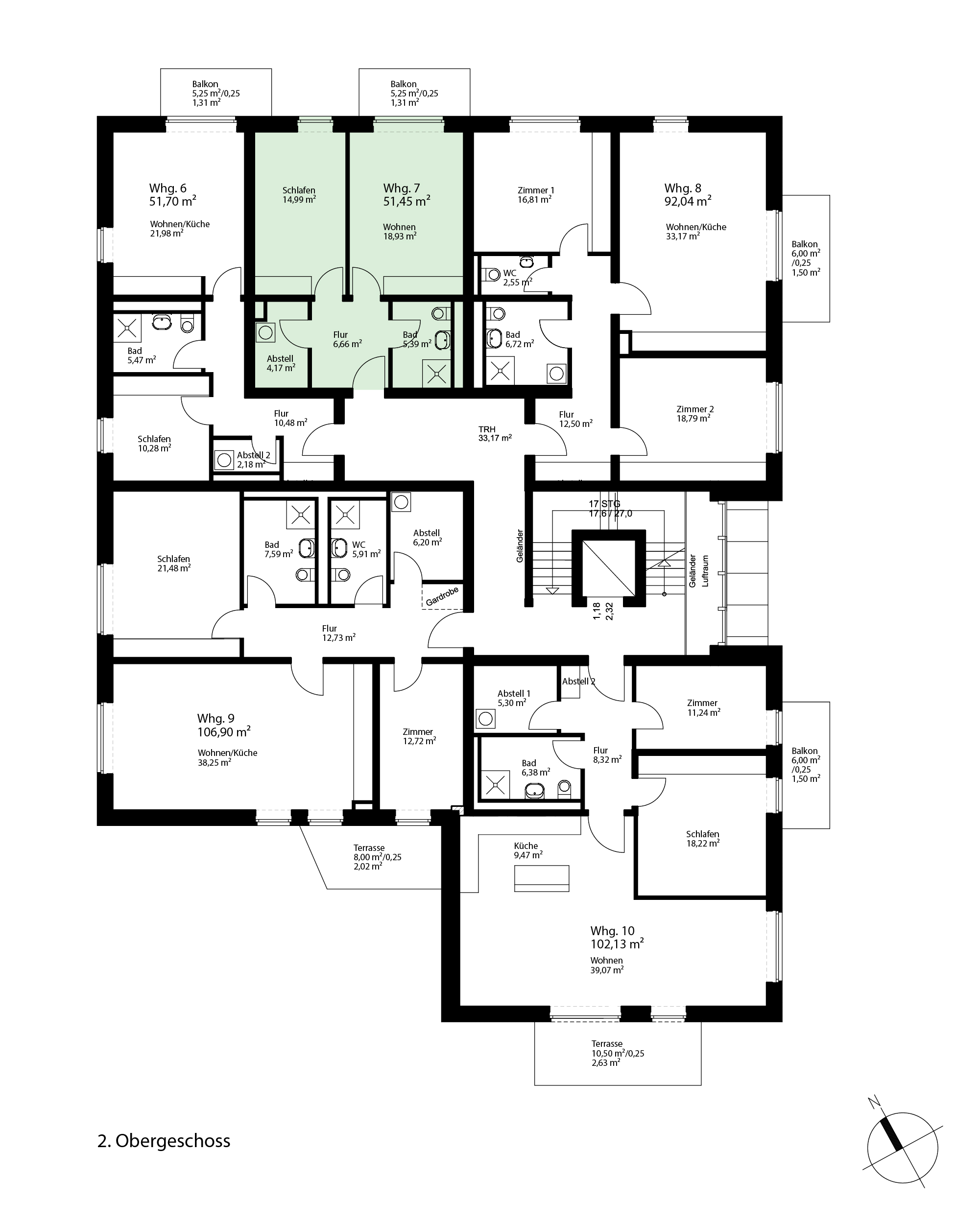
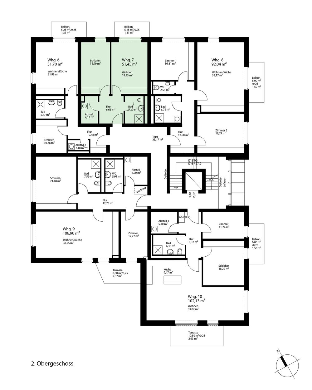
Wohnung 7

51,45 m² Wohnfläche
2 Zimmer
2. Obergeschoss Objektart
Kaufpreis
369.000 €
Wohnfläche:
51,45 m²
Zimmer:
2
Lage:
2. Obergeschoss
Käuferprovision:
Provisionsfrei
Balkon:
Ja
Einbauküche:
Ja, offene Küche
Anzahl Bäder:
1
Abstellraum:
Ja
Fußbodenheizung:
Ja
Aufzug:
Ja
Tiefgaragenstellplatz:
Ja
Beheizung:
Luft-Wasser-Wärmepumpe
Boden:
Fertigparkett
Kaufpreis:
369.000 €
Kellerabstellraum:
Ja
Fahrradraum:
Ja
Sonnenschutz außen:
Ja

Sonstiges

Loggien werden zu 50%, Balkone und Terrassenflächen nur zu 25% in die Gesamtfläche eingerechnet (nach WoFlV 2003). Visualisierungen und Pläne dienen der Veranschaulichung des Kaufgegenstands, enthalten aber keine Eigenschaftszusicherungen

Ihre Ansprechpartner Immohaus-Nord Bianca Schacht und
Stefan Everding